Compact Innovations

Custom Design Solutions

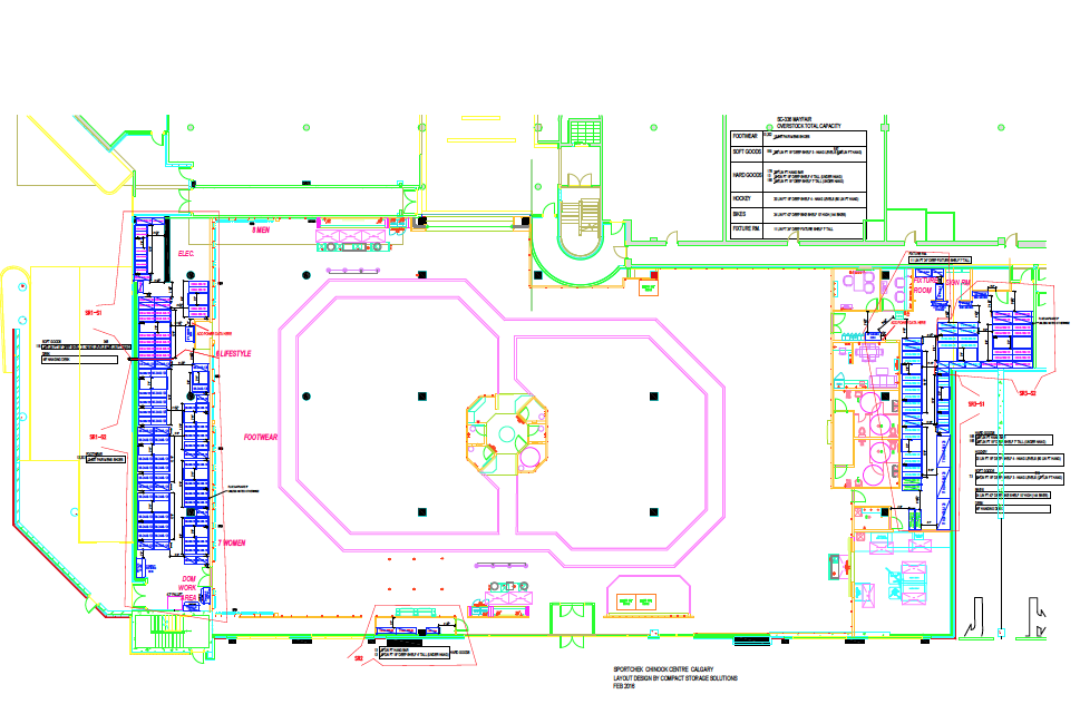
The Compact Innovations creative team can design, plan, and source your storage and shelving solutions from inception to installation. Our experienced team has worked with many of the largest retailers and facilities across Canada and the United States.

We pride ourselves on the ability to create efficient storage solutions specific to your needs. No project is too big or small, whether it’s new construction or a renovation – we create new found space for your storage & inventory needs.

Our creative design team covers all aspects of your storage solution, including:

  • Integration with current building features (workstations, static units, etc.)
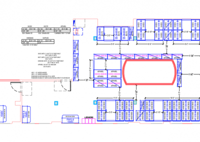
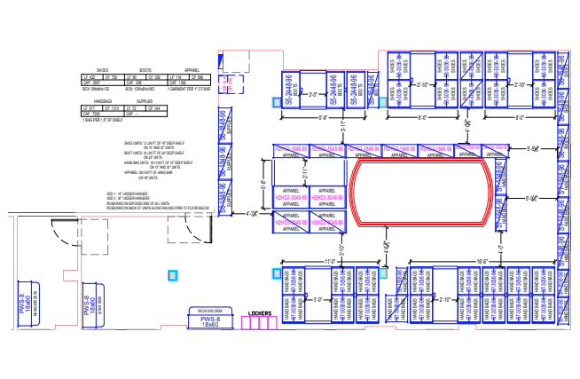
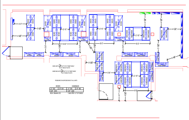
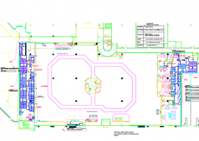
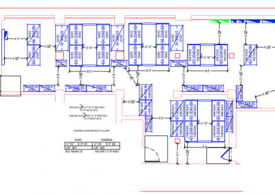
  • Solid Works & Auto CAD drawings
  • 2D & 3D drawing capabilities
  • Engineering drawings
  • Seismic considerations in unstable areas
  • Safety Considerations
  • Compliance with local building and storage codes
  • Additional architectural considerations
  • Innovative & alternative ideas for dead space

Contact us for a free consultation 

Contact Us Today

45 Mural Street, Unit 3
Richmond Hill, ON
L4B 1J4

1-833-304-TRAC (8722)
1-519-304-TRAC (8722)